MENU
Our Work
Residential
Commercial
Interior Design
In Progress
Swan Lake House
Craftsman Farmhouse
Scandinavian Inspired
Sunday River Ski Home
Merrill Hill Ski Home
Modern Addition/Pool House
Manzanita Modern
About Us
Press
Careers
Plans For Sale
Garages and ADU's
Cabins
Farmhouses
Craftsman
Modern
Rustic Mountain
Green/Sustainable
Contact
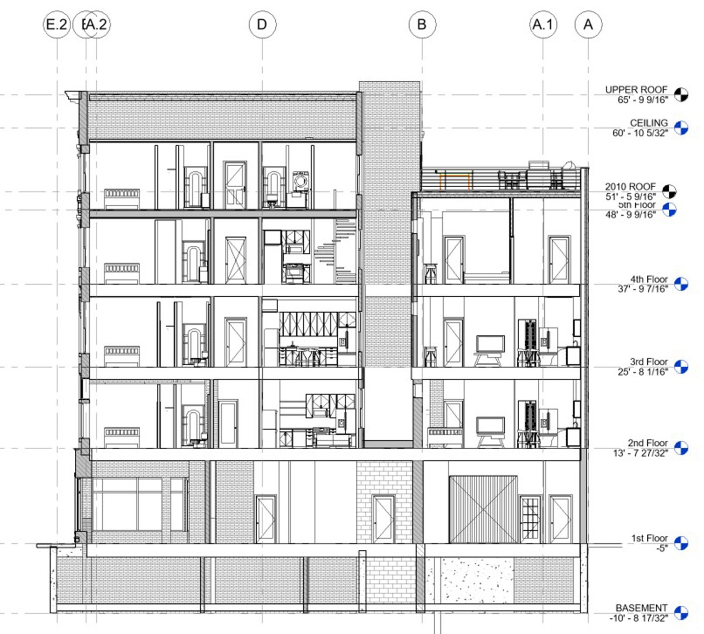
Modern Living Apartments
Modern Living Apartments
Next Project: Suncook Apartments
Back To All Projects
^